FR +33 9 70 73 49 24 – US +1 917 746 8056

Y29udGFjdEA1NnBhcmlzLmNvbQ==

Left Bank Paris Apartment for Sale – Timeless 1-Bedroom Near Rue du Bac

Left Bank Paris Apartment for Sale – Timeless 1-Bedroom Near Rue du Bac

SOLD SUBJECT TO CONTRACT

1 bed, 1 bath

7th arrondissement – 1st floor – 588 sq.ft.

A Timeless Parisian Retreat on the Left Bank

Located in one of the Left Bank’s most sought-after neighbourhoods, this one-bedroom apartment embodies the elegance and balance of classic Parisian architecture. Set on the first floor of a well-maintained period building, just moments from Rue du Bac and the Pont Royal, it enjoys an exceptional central address surrounded by museums, cafés, boutiques, and excellent transport links.

The apartment is the result of two symmetrically identical lots, elegantly arranged around a charming inner courtyard — a configuration that lends both harmony and a rare sense of calm in the heart of the city.


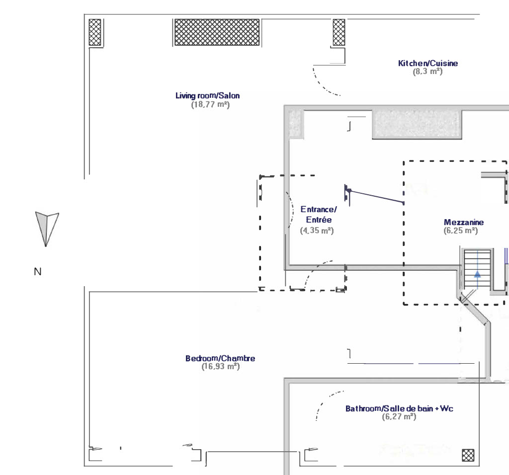
A Classic Parisian Interior with Exceptional Volume

With impressive ceiling heights of 12.5 ft, the apartment offers beautiful volume and a light, airy feel throughout. The layout is defined by near-equal living and bedroom spaces, a hallmark of refined period apartments and a feature rarely found in one-bedroom properties.

A welcoming entrance hall opens onto a generously proportioned living room, ideal for both entertaining and everyday Parisian life. The separate kitchen is comfortably sized and allows for dining, while the bedroom mirrors the living room in scale, reinforcing the apartment’s pleasing symmetry. A well-appointed bathroom completes the main level.

Above, a mezzanine-style space provides valuable additional surface area — perfect for storage, a reading nook, or a creative retreat — without compromising the elegance of the main rooms.


Key Features

* Total Space: 588 sq ft
* Ceiling Height: 12.5 ft
* Balanced layout with living room and bedroom of comparable size
* Separate dine-in kitchen
* Mezzanine-style additional space
* Period proportions and architectural character
* Quiet courtyard setting


What We Love

* Architectural Harmony: A rare symmetrical layout born from two identical lots
* True Parisian Character: Volume, proportions, and calm courtyard exposure
* Left Bank Address: Steps from Rue du Bac, the Seine, and Pont Royal — just across the bridge from the Right Bank.


Who This Property Is Perfect For

* Buyers seeking a character-filled Parisian apartment with classic proportions
* International clients looking for a refined Left Bank pied-à-terre
* Long-term investors drawn to timeless layouts in prime central Paris

Floor Plan

Location

Apartment Facts

Total Rooms:
2
Ceiling Height
12.5 ft
Historic Features:
Fireplace, moldings, French windows
General Condition:
Could benefit from renovation
Heating/Hot Water:
Individual - Electric
Kitchen:
Seperate dine-in
Bathrooms:
1
Bedrooms:
1
Total Floors:
5
Floor:
1
Size:
588 sq.ft.

Building Facts

Litigation in co-ownership:
No litigation
Number of Lots:
48
General Condition:
Good
Interphone:
Yes
Digicode:
Yes

Taxes & Fees

Amount of agency fees:
5%
Agency fees:
Paid by the seller
Price including agency fees:
€ 895,000
Property tax (fonciere):
€ 1 111
Quarterly building fees:
€ 612

Interested in this property?

Your message was sent successfully. Thanks.