FR +33 9 70 73 49 24 – US +1 917 746 8056

Y29udGFjdEA1NnBhcmlzLmNvbQ==

Bastille – 3 Bed 2 bath Family Apartment with Balconies

Bastille – 3 Bed 2 bath Family Apartment with Balconies

SOLD SUBJECT TO CONTRACT

3 bed, 2 bath

Bastille - 4th floor - 1,050 sq.ft.

Location & Lifestyle

Ideally situated in the sought-after Bastille area, on the edge of the Marais and just steps from Place des Vosges, this apartment enjoys a prime location in vibrant East Paris. The neighborhood is known for its lively atmosphere, cultural richness, and excellent transport links. A rare opportunity for anyone looking to buy property in Paris near the Marais, while benefiting from the comfort and advantages of a modern building.


Property Description

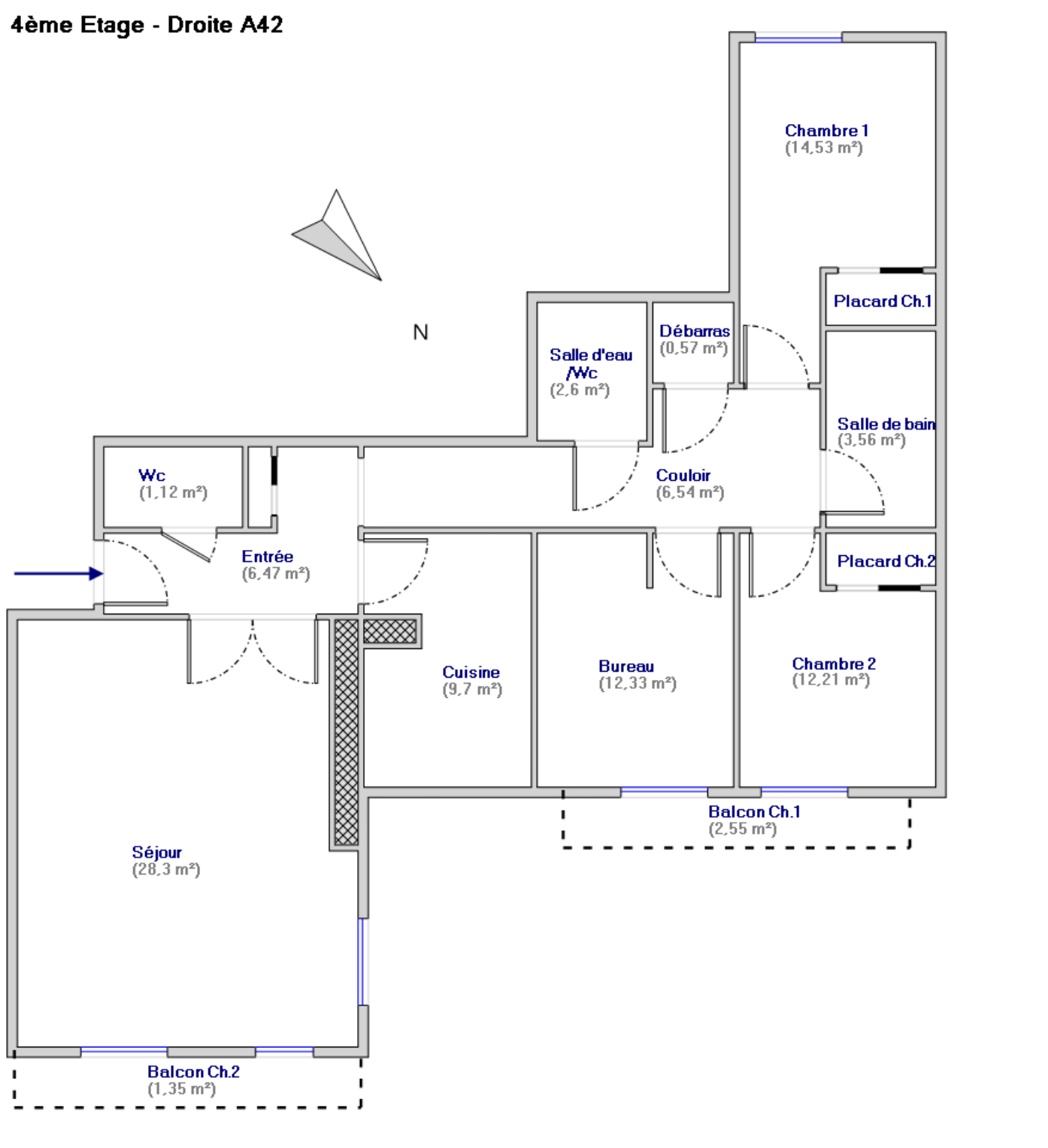
Located on the 4th floor with elevator of a well-maintained and secure 1998 building, this 97.93 m² (approx. 1,050 sq ft) apartment offers an optimized layout and generous volumes.

It features:

* A living and dining room opening onto a first balcony
* An independent kitchen
* Three bedrooms – one overlooking the courtyard and two opening onto a second balcony
* Two bathrooms
* A guest WC
* A utility room and extensive built-in storage
* Basement storage
* Parking place in building available at extra cost

The floor plan is perfectly suited for a family home, a high-quality rental investment, or a professional home office.


Key Features

* Bright and airy with favorable exposure throughout the day
* Quiet environment thanks to efficient insulation
* Modern, well-kept building offering comfort and security
* Cellar included
* Excellent energy performance (C)
* Parking available in the building at extra cost – a rare amenity in this central neighborhood


Conclusion

This apartment offers the perfect balance between the vibrant energy of Bastille and the timeless charm of the Marais, while enjoying the comfort and calm of a contemporary building. Tucked away in a buzzing neighborhood yet benefiting from remarkable tranquility, it sits just steps from everyday amenities and one of Paris’ most sought-after street markets, the Marché Richard-Lenoir. A highly attractive opportunity in the Paris real estate market, ideally suited for both local and international buyers.

Floor Plan

Location

Apartment Facts

Total Rooms:
4
Ceiling Height
8.2 ft
Historic Features:
hardwood flooring
General Condition:
Excellent
Heating/Hot Water:
Individual
Kitchen:
Separate fully equipped
Bathrooms:
2
Bedrooms:
3
Floors:
6
Floor:
4
Size:
1,050 sq.ft.

Building Facts

Elevator:
Yes
Litigation in co-ownership:
No litigation
Number of Lots:
45
General Condition:
Very good
Interphone:
Yes
Digicode:
Yes
Building style:
1998

Taxes & Fees

Amount of agency fees:
5%
Agency fees:
Paid by the seller
Price including agency fees:
€ 1,250,000
Property tax (fonciere):
€ 2,416
Quarterly building fees:
€ 771

Interested in this property?

Your message was sent successfully. Thanks.